3 / 14 Gammon Drive, Varsity Lakes
Spacious 3-Level Townhouse with Courtyard & Double Garage
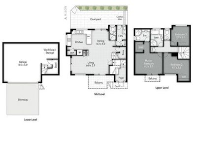
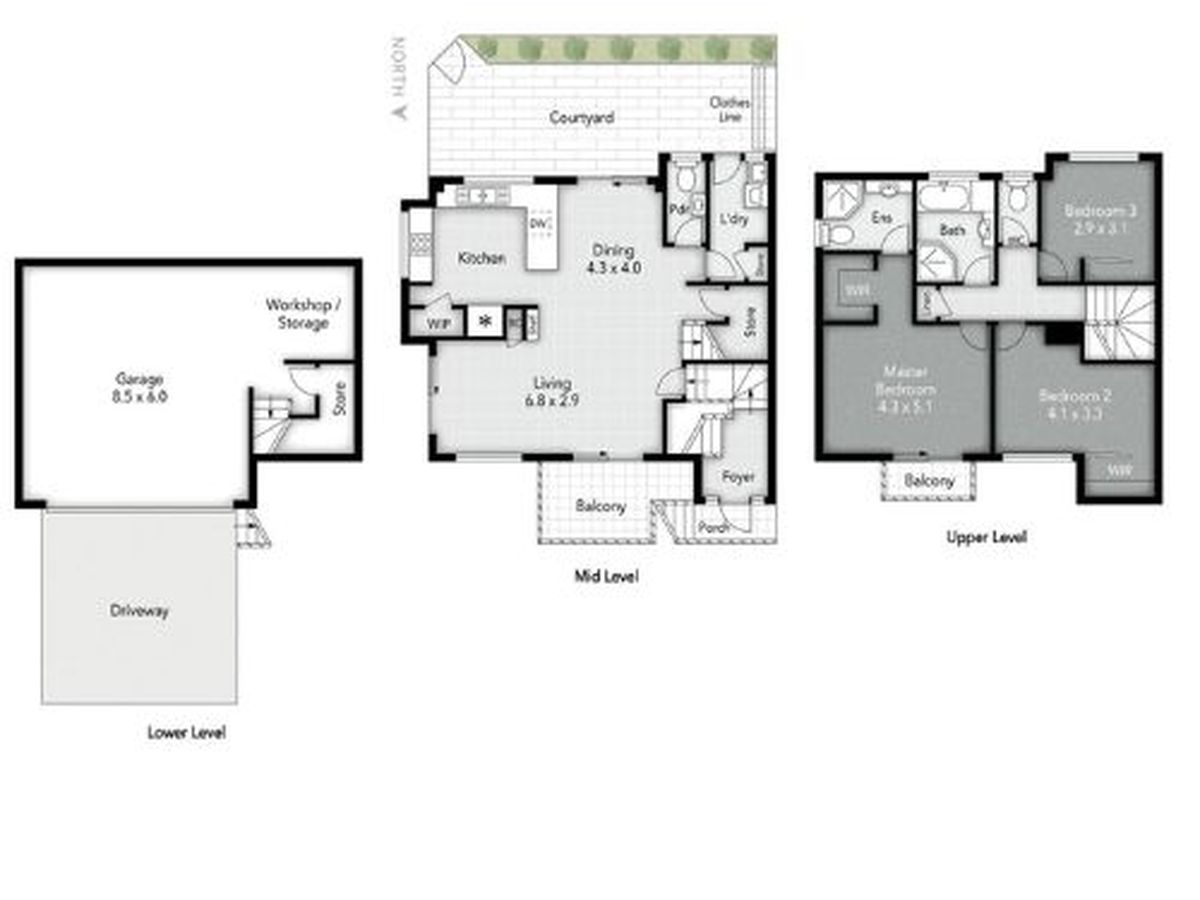
Perfectly positioned on a quiet, elevated street, this stylish tri-level townhouse offers exceptional privacy, space, and convenience, an ideal place to call home. With its relaxed coastal feel, generous layout, and lush green outlooks from every level, this property provides a peaceful retreat while keeping you close to everything you need.
Step inside to open-plan living and dining areas that flow seamlessly to a private balcony, perfect for your morning coffee or relaxing in the evenings. The modern kitchen includes ample bench and storage space, and the lower level opens to a tranquil courtyard surrounded by tropical gardens an inviting spot to unwind or entertain.
Property Features:
- 3 spacious bedrooms with built-ins (master with ensuite and private balcony)
- Air-conditioned open-plan living and dining with leafy views
- Well-appointed kitchen with breakfast bar and stainless steel appliances
- Private, tranquil courtyard ideal for outdoor living
- Double lock-up garage with internal access and extra storage/workshop space
- Powder room on main living level
- Ceiling fans throughout
- 186m² total internal space across three levels
Location Highlights:
- Situated in a quiet, well-maintained complex
- Close to Varsity College and Bond University
- Minutes to local shops, cafés and walking trails
- Short drive to Robina Town Centre, Burleigh Beach and the M1
- Centrally located for easy access to all the Gold Coast lifestyle amenities
If you’re looking for a spacious, low-maintenance home in a fantastic location, this townhouse ticks all the boxes.


